Едностаен апартамент за продажба в кв. Кършияка, Пловдив – с АКТ 16 и отличен потенциал

Пловдив, Кършияка
  • 1-стаен
  • Площ: 61 m2
  • Обява ID: 16733
  • Стаи: 1
  • Спални: 1
  • Етаж: 1 от 7
  • Цена на кв.м : 1754 €
  • Година на строителство: 2025
Описание

Агенция TRIVIUM ESTATE представя едностаен апартамент за продажба в кв. Кършияка 🏙️. Жилището се намира на 1-ви висок етаж над търговски помещения в 7-етажна сграда с въведена в експлоатация (АКТ 16). Имотът е отличен избор както за лично ползване, така и за инвестиция.

🏙️ Сграда и строителство

Апартаментът е разположен в модерна жилищна сграда с АКТ 16 🛠️, което позволява незабавно финализиране на сделката и стартиране на довършителни дейности. Наличието на търговски обекти на партерно ниво осигурява удобство и допълнителна стойност за живущите.

📐 Площи и разпределение

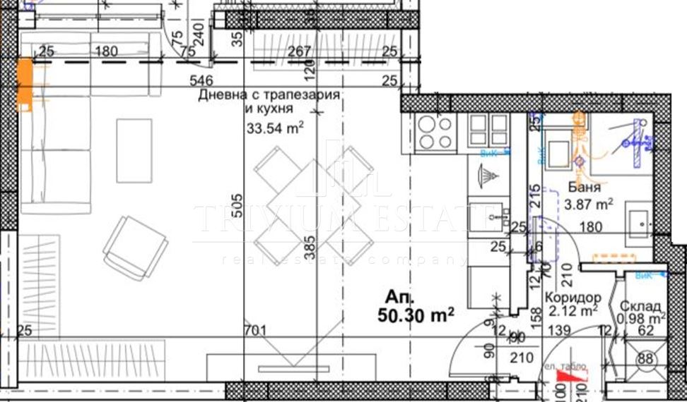
Жилището е с площ от 61 кв.м и предлага функционално разпределение:

  • Просторна всекидневна с възможност за обособяване на кухненски и спален кът
  • Баня с тоалетна 🚿
  • Тераса 🌞
  • Склад

По-голямата квадратура за този тип имот създава усещане за простор и комфорт.

☀️ Изложение, светлина и комфорт

Първият висок етаж осигурява удобен достъп и същевременно повече уединение. Наличието на тераса допринася за допълнително пространство и светлина в жилището.

📍 Локация и инфраструктура

Квартал Кършияка е един от най-предпочитаните райони в Пловдив, отличаващ се с отлична инфраструктура, бърз достъп до центъра и множество магазини, заведения и удобства в близост. Районът е изключително подходящ както за живеене, така и за отдаване под наем.

🏗️ Състояние и потенциал

Имотът се предлага без довършителни работи, което предоставя отлична възможност за персонализация – можете да го обзаведете според собствения си вкус и нужди 🎨.

Има възможност за закупуване на паркомясто.

Подходящ за…

✓ първа покупка

✓ инвестиция с цел доходност

✓ отдаване под наем

✓ компактен и просторен градски дом

📞 За повече информация и организиране на оглед, свържете се с екипа на TRIVIUM ESTATE. Ще получите професионална консултация и пълно съдействие при покупката.

TRIVIUM ESTATE предлага безплатна консултация с нашия кредитен консултант и съдействие при кредитиране.

За повече интересни оферти и информация, харесайте или се абонирайте за нашите канали:

FB: https://www.facebook.com/share/15sHFtrVWj/?mibextid=wwXIfr

Instagram: https://www.instagram.com/triviumplovdiv/

TikTok: https://www.tiktok.com/@triviumestate?_t=ZN-8soOStpMjeI&_r=1

YouTube: http://www.youtube.com/@triviumestate

Или посетете нашият сайт:

https://trivium.bg/

Отговорен консултант: Ивайло Райков

Реф. № 16733

Публикувано от
Ивайло Райков
Ивайло Райков
i.raykov@trivium.bg
Най-горе