ТРИСТАЕН АПАРТАМЕНТ В НОВА СГРАДА С АКТ 14 – РАЙОН „ТРИМОНЦИУМ“, ПЛОВДИВ

Пловдив, Център
  • 3-стаен
  • Площ: 107 m2
  • Обява ID: 16652
  • Стаи: 3
  • Спални: 2
  • Етаж: 6 от 11
  • Цена на кв.м : 2300 €
  • Година на строителство: 2026
Описание

Агенция TRIVIUM ESTATE представя:

ТРИСТАЕН АПАРТАМЕНТ В НОВА СГРАДА С АКТ 14 – РАЙОН „ТРИМОНЦИУМ“, ПЛОВДИВ

Предлагаме на Вашето внимание просторен тристаен апартамент в новострояща се жилищна сграда (Акт 14), разположена в един от най-предпочитаните и комуникативни райони на гр. Пловдив – срещу търговски център Grand, в близост до хотел „Тримонциум“.

Основни характеристики на имота:

Етаж: 6-ти

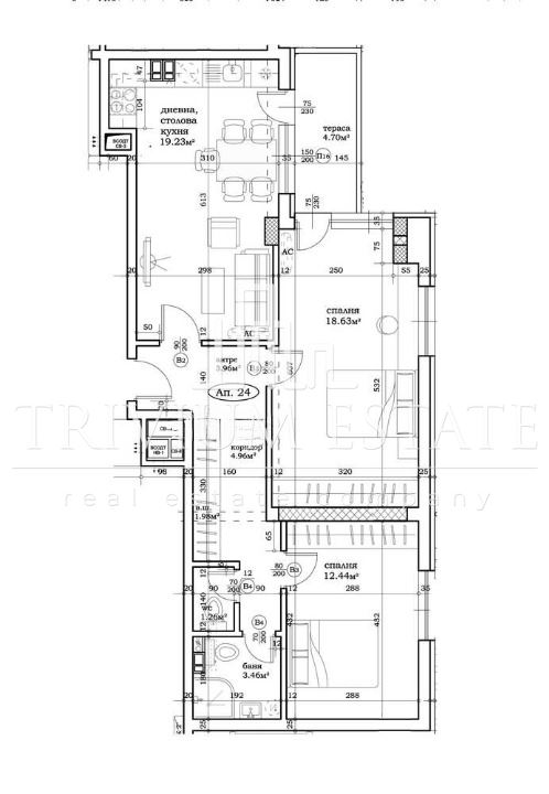
Обща площ: 107,02 кв.м

Изложение: изток

Статут: апартамент

Разпределение:

✓входно антре

✓ просторна дневна с трапезария и кухненски бокс – 19,23 кв.м

✓ спалня – 18,63 кв.м

✓ втора спалня – 12,44 кв.м

✓ баня с тоалетна

✓ втора, отделна тоалетна

✓ склад / килер

✓ тераса

Предимства на имота:

Дневната зона и двете спални са с източно изложение и гледка към вътрешния двор, което осигурява тишина, спокойствие и приятна естествена светлина през целия ден. Липсата на уличен шум прави жилището изключително подходящо за комфортно семейно обитаване.

Функционалното и добре балансирано разпределение осигурява ясно зониране на пространствата и отлични условия за семейства с деца – удобство, безопасност и уют в ежедневието.

За сградата:

Сградата е проектирана и изпълнена по съвременни стандарти за качество и комфорт, с вложени висок клас материали:

✓ модерна фасадна облицовка

✓ ефективна топло- и хидроизолация

✓ петкамерна PVC дограма

✓ елегантно завършени общи части с декоративни мазилки

✓ автоматично осветление

✓ тих хидравличен асансьор

На разположение на собствениците са:

✓ подземен паркинг с отлична осветеност

✓ гаражи и паркоместа с топла връзка към жилищата

✓ контролиран достъп

Локация:

Имотът се намира в район Каменица 1 – утвърден и предпочитан квартал с отлично развита инфраструктура. В непосредствена близост са разположени:

✓ търговски център Grand

✓ супермаркети, магазини и заведения

✓ училища и детски градини

✓ аптеки и медицински центрове

✓ спирки на градския транспорт

Локацията осигурява бърз достъп до центъра на града, както и до основни булеварди и изходи на Пловдив.


TRIVIUM ESTATE предлага безплатна консултация с нашия кредитен консултант и съдействие при кредитиране. 


За повече интересни оферти и информация, харесайте или се абонирайте за нашите канали: 

FB: https://www.facebook.com/share/15sHFtrVWj/?mibextid=wwXIfr 

Instagram: https://www.instagram.com/triviumplovdiv/ 

TikTok: https://www.tiktok.com/@triviumestate?_t=ZN-8soOStpMjeI&_r=1 

YouTube: http://www.youtube.com/@triviumestate 

Или посетете нашият сайт: 

https://trivium.bg/ 


Отговорен консултант: Айваз Рустем

Реф. номер 16652

Публикувано от
Айваз Рустем
Айваз Рустем
a.rustem@trivium.bg
Най-горе