Многостаен апартамент с АКТ 14 в кв. Гагарин.

Пловдив, Гагарин
  • Многостаен
  • Площ: 184 m2
  • Обява ID: 16698
  • Стаи: 4
  • Спални: 3
  • Етаж: 12 от 12
  • Цена на кв.м : 1300 €
  • Година на строителство: 2027
Описание

Агенция ТРИВИУМ ЕСТЕЙТ:

🏡 Многостаен апартамент с АКТ 14 за продажба разположен в кв. Гагарин.

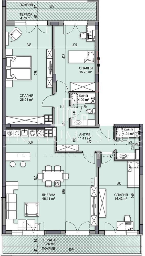
📐 Площ и разпределение:

Апартаментът е с обща площ от 184 кв.м. , разположен на 12-ти последен етаж..

Разпределението е функционално и практично, както следва:

  • Входно антре;
  • Всекидневна;
  • Три спални;
  • Два санитарни възела;
  • Две тераси.

🏠 Състояние и обзавеждане:

Имотът ще бъде издаден на шпакловка и замазка.

📦 Допълнителни удобства:

Комплекса включва четири жилищни сгради, подземен и надземен паркинг с паркоместа и гаражи, озеленени площи с обособен детски кът и зони за отдих, както и специално проектиран салон на партер - място за релакс, работа, или среща с приятели.

📍 Локация и среда:

В близост до Магазини, Училища и Детски Градини.

👤 Подходящ за:

✓ Семейства

✓ Инвестиция с бърза възвръщаемост

📞 Свържете се с нас за повече информация и оглед. Екипът на TRIVIUM ESTATE ще ви съдейства професионално на всяка стъпка от сделката.

TRIVIUM ESTATE предлага безплатна консултация с кредитен консултант и пълно действие при кредитиране.

📲 Следете ни за още актуални оферти:

Фейсбук: https://www.facebook.com/share/15sHFtrVWj/?mibextid=wwXIfr

Инстаграм: https://www.instagram.com/triviumplovdiv/

TikTok: https://www.tiktok.com/@triviumestate?_t=ZN-8soOStpMjeI&_r=1

YouTube: http://www.youtube.com/@triviumestate

🌐 Посетете сайта ни:

https://trivium.bg/

👤 Отговорен консултант: Ивайло Райков

📌 Реф. номер: 16698

Публикувано от
Ивайло Райков
Ивайло Райков
i.raykov@trivium.bg
Най-горе