🏢 3-стаен – просторен южен апартамент с гараж | АКТ 14 - ГАГАРИН

Пловдив, Гагарин
  • 3-стаен
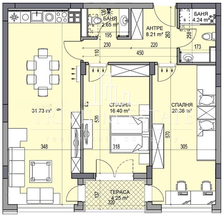
  • Площ: 121 m2
  • Обява ID: 16709
  • Стаи: 3
  • Спални: 2
  • Етаж: 11 от 13
  • Цена на кв.м : 1557 €
  • Година на строителство: 2026
Описание

Агенция TRIVIUM ESTATE представя тристаен апартамент за продажба в кв. Гагарин с гараж включен в цената🏢

🏙️Сграда и строителство

Aurora Residence е новострояща се сграда, изпълнявана с изключително високо качество на строителството и материалите. Проектът е с АКТ 14, като въвеждането в експлоатация е планирано за 2026 г. Сградата е на 13 етажа, с модерен облик, контролиран достъп и функционални общи части.

📐Площи и разпределение

Апартаментът е с чиста застроена площ от 121.47 кв.м, разположен на 11-ти етаж от 13, като не е последен.

Към имота има партерен гараж с площ 26.77 кв.м, включен в цената, с топла връзка към сградата, което значително повишава комфорта и практичността.

☀️Изложение, светлина и комфорт

Жилището е изцяло с южно изложение, което гарантира отлична естествена светлина през целия ден, по-висока енергийна ефективност и комфортна жилищна среда. Високият етаж осигурява усещане за простор и спокойствие.

Локация и инфраструктура

Имотът се намира в Гагарин - район с развиваща се инфраструктура, удобен градски транспорт и бърз достъп до основни пътни артерии. В близост са разположени търговски обекти, услуги, зелени площи и ежедневни удобства, което прави жилището подходящо както за живеене, така и за инвестиция.

Състояние и потенциал

Апартаментът се предлага на етап ново строителство – АКТ 14, което дава възможност за завършване и интериорно оформление според индивидуалните предпочитания на бъдещия собственик. Имотът има отличен потенциал за дългосрочен наем или капиталова инвестиция в развиващ се район.

Подходящ за…

✓семейно жилище

✓покупка с цел инвестиция

✓дългосрочно отдаване под наем

✓клиенти, търсещи ново строителство с гараж и топла връзка

 

За повече информация, детайли по проекта или организиране на оглед, се свържете с екипа на TRIVIUM ESTATE. Ще получите професионално съдействие през целия процес на покупка.

TRIVIUM ESTATE предлага безплатна консултация с нашия кредитен консултант и съдействие при кредитиране.

 

За повече интересни оферти и информация, харесайте или се абонирайте за нашите канали: 

FB: https://www.facebook.com/share/15sHFtrVWj/?mibextid=wwXIfr 

Instagram: https://www.instagram.com/triviumplovdiv/ 

TikTok: https://www.tiktok.com/@triviumestate?_t=ZN-8soOStpMjeI&_r=1 

YouTube: http://www.youtube.com/@triviumestate 

Или посетете нашият сайт: 

https://trivium.bg/ 

 

Отговорен консултант: Айваз Рустем

Реф. номер 16709

Публикувано от
Айваз Рустем
Айваз Рустем
a.rustem@trivium.bg
Най-горе