🏠 Нова къща на калкан за продажба | с. Първенец

Пловдив, област, с.Първенец
  • Къща
  • Площ: 277 m2
  • Обява ID: 16728
  • Стаи: 0
  • Спални: 0
  • Етаж: 0 от -999
  • Цена на кв.м : 1083 €
  • Година на строителство: 2025
Описание

Агенция TRIVIUM ESTATE представя:

 

Къща на калкан за продажба в с. Първенец, само на няколко минути от гр. Пловдив. Имотът е ново строителство с модерна визия, централна локация в селото и отлична инфраструктура. Подходящ е както за семейно жилище, така и за покупка с дългосрочна стойност 🏡

 

Сграда и строителство

Къщата е част от проект от две жилища на калкан, изградени с внимание към детайла и качеството. Налице са централен водопровод и канализация, което е сериозно предимство за района.

Изпълнението включва:

✔️ Троен стъклопакет за по-добра енергийна ефективност

✔️ Изводи за термопомпа

✔️ Подготвени инсталации за модерно отопление

✔️ Качествени материали и стабилна конструкция

 

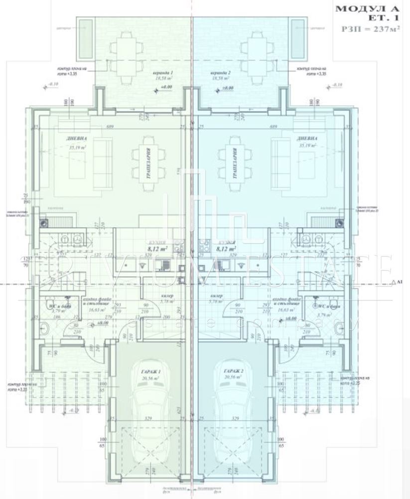
Площ и разпределение

Къщата разполага с добре организирано вътрешно пространство и функционално разпределение.

 

Първи етаж

Просторна дневна с трапезария – около 40 кв.м, с директна връзка към двора

Кухненска зона

Баня с тоалетна

Антре и складово пространство

Гараж

Дневната зона е светла и отворена, с достатъчно място за комфортно зониране на хол и трапезария.

 

Втори етаж

Три самостоятелни спални

Баня с тоалетна

Коридор с естествена светлина

Разпределението позволява удобно семейно ползване и ясно отделяне на личните пространства.

 

Мансарден етаж

Светъл мансарден етаж, подходящ за кабинет, фитнес зона, стая за гости или допълнителен самостоятелен апартамент. Пространството дава гъвкавост според нуждите на бъдещите собственици ✨

 

Изложение, светлина и комфорт

Къщата е проектирана така, че да осигурява естествена светлина, простор и функционалност във всяко помещение. Големите прозорци и модерната дограма допринасят за енергиен комфорт през всички сезони.

 

Локация и инфраструктура

с. Първенец е предпочитано място за живеене, благодарение на близостта до Пловдив, спокойната среда и добрата инфраструктура. Достъпът е лесен, а районът предлага удобства за целогодишно обитаване 📍

Подходяща за

✔️ Градско къщно живеене близо до Пловдив

✔️ Качествено ново строителство

✔️ Дългосрочна покупка

 

Свържете се с нас за повече информация и организиране на оглед 🏠✨

 

TRIVIUM ESTATE предлага безплатна консултация с нашия кредитен консултант и съдействие при кредитиране.

 

Отговорен консултант: Руми Стрийтър

Реф. №16728

Публикувано от
Руми Стрийтър
Руми Стрийтър
r.streeter@trivium.bg
Най-горе