Търговски обект в кв. Смирненски.

Пловдив, Смирненски
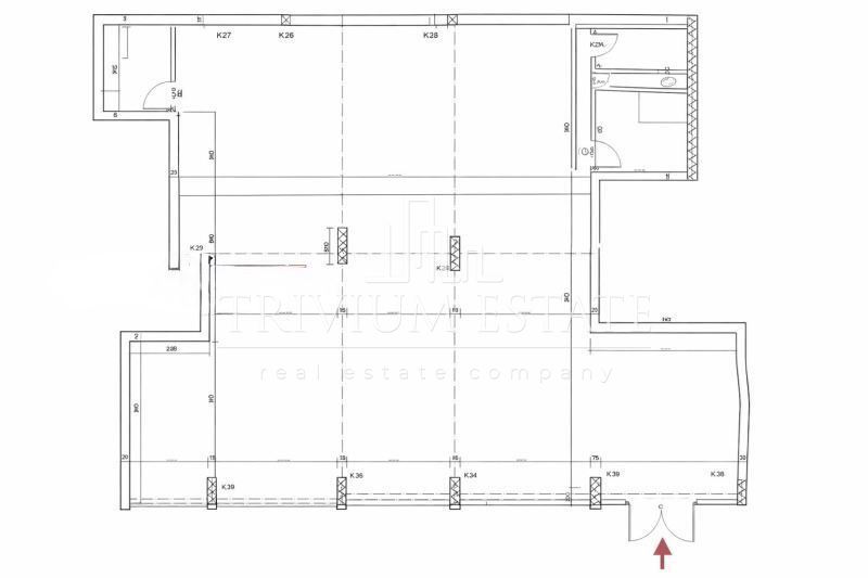
  • Магазин
  • Площ: 195 m2
  • Обява ID: 16775
  • Стаи: 1
  • Спални: 0
  • Етаж: 1 от 10
  • Цена на кв.м : 2846 €
  • Година на строителство: 2020
Описание

Агенция Тривиум Естейт предлага за продажба търговски обект в жилищен комплекс в кв. Смирненски.

🔹 Площ: 195 кв.м;

🔹 Локация: Партерно ниво с лице към улица – отлична видимост и достъпност;

🔹 Статут: Магазин, подходящ за различни видове търговска дейност.

📈 Идеален имот за инвестиция или собствен бизнес.

С два отделни входа и два санитарни възела.

Санитарните помещения са напълно завършени бойлер, душ и моноблок

Към имота има възможност за закупуване на две и повече паркоместа на цена от: 17 000 евро.

ТРИВИУМ ЕСТЕЙТ предлага безплатно съдействие при кредитиране. 

За повече информация и огледи:

Отговорен консултант: Ивайло Райков

Реф.  № 16775

 

Публикувано от
Ивайло Райков
Ивайло Райков
i.raykov@trivium.bg
Най-горе