Агенция TRIVIUM ESTATE предлага за продажба двустаен апартамент в новострояща се жилищна сграда с доказан инвеститор, разположена в кв. Коматево, гр. Пловдив – район с добра инфраструктура и бърз достъп до изхода на града.
Сградата е в процес на строителство, стартирало през октомври 2025 г., с планирано завършване и Акт 16 през август 2027 г.
Проектирана е с 5 етажа, като жилищната част включва малък брой апартаменти, осигуряващи спокойствие и комфорт за живеене.
📍 Локация
• гр. Пловдив
• кв. Коматево
• комуникативен район с бърз достъп до изхода на града
• в близост до ресторанти, аптека, парк и болница
• удобен градски транспорт
📐 Параметри
• тип имот: двустаен апартамент
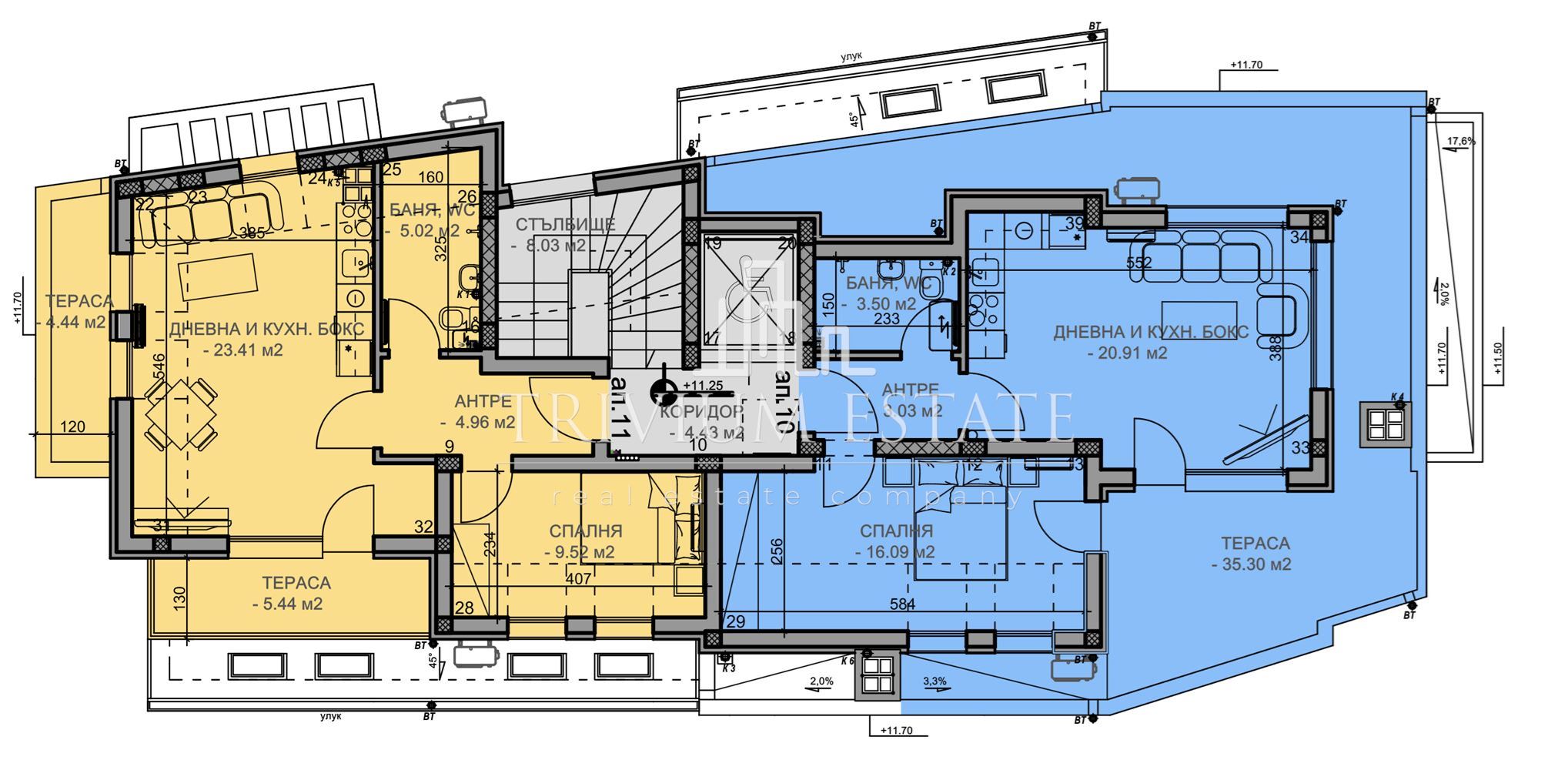
• обща площ: 73 кв.м.
• разпределение:
– хол с кухня 23.40 кв.м
– спалня 9.50 кв.м
– баня с тоалетна 5 кв.м
– коридор 5 кв.м
– тераса 4.44 кв.м / 5.44 кв.м
• височина на таваните: 2.80 м
🏢 Сграда
• ново строителство с доказан инвеститор
• етажност: 5 етажа
• по 3 апартамента на етаж
• мансарден последен етаж с ограничен брой жилища
• 5 години гаранция на сградата
🌿 Предимства
• малка и функционална сграда
• гъвкави схеми на плащане
• подходящ както за живеене, така и за инвестиция
• възможност за закупуване на:
– гараж – 23 000 €
– паркомясто – 10 000 €
– складови помещения
Отговорен консултант: Иванка Гьошева
Реф. №: 17034